Discover more from Cranbrook Kitchen Sink
Subscribe to get the latest posts sent to your email.
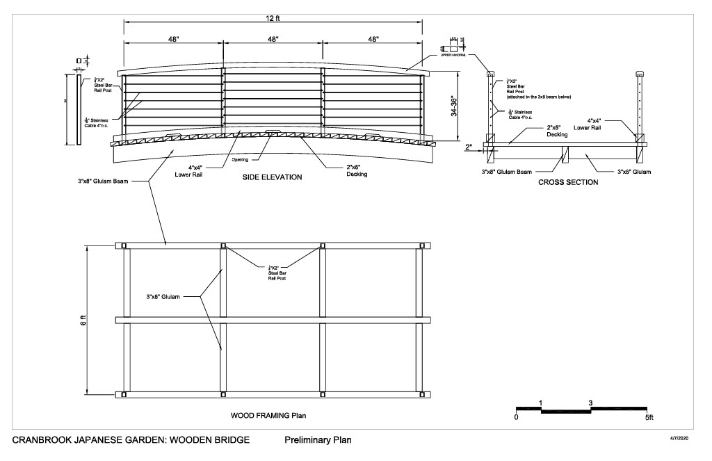
Published June 11, 2025 at 1024 × 663 in Structural Engineering: Bridges of the Japanese Garden
The Weekly Blog of the Cranbrook Center for Collections and Research
Subscribe to get the latest posts sent to your email.
Published June 11, 2025 at 1024 × 663 in Structural Engineering: Bridges of the Japanese Garden